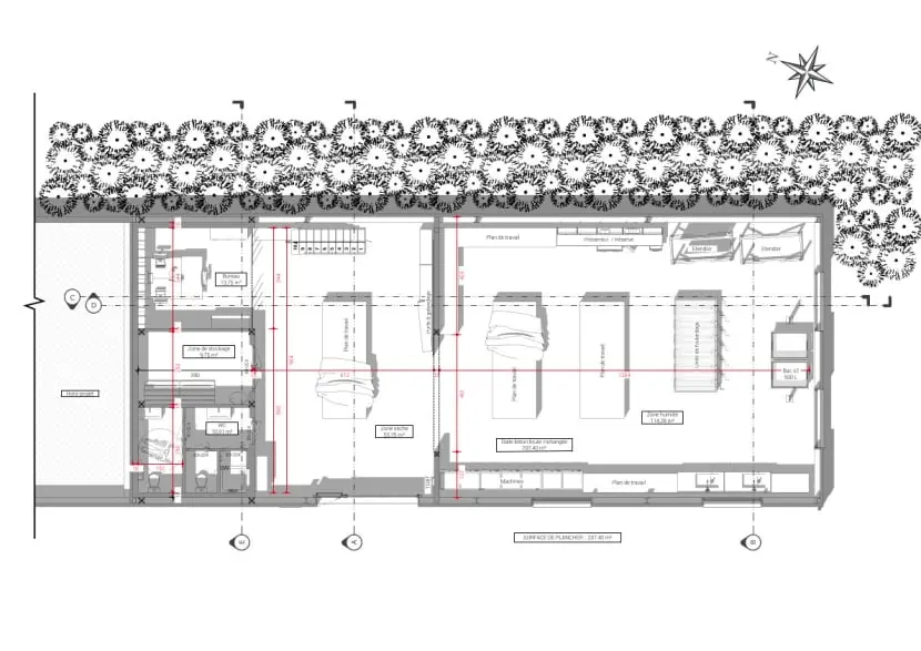
Caissons
en paille préfabriqués

Mobirise

Les modules préfabriqués en paille constituent une approche avant-gardiste et respectueuse de l'environnement dans le domaine de la construction, particulièrement pour les édifices à faible émission de carbone. Ces modules, construits en atelier à partir de structures en bois garnies de ballots de paille comprimés, assurent une performance thermique exceptionnelle (faible coefficient de conductivité thermique) et un bon contrôle hygrométrique. Comparativement aux matériaux traditionnels, ils diminuent de manière significative les émissions de CO₂ associées à la fabrication et au transport des matériaux. Leur facilité d'assemblage et leur légèreté contribuent aussi à diminuer la durée des travaux et les dépenses en main-d'œuvre.

L'implémentation de ces caissons nécessite une préparation minutieuse en usine, où ils sont taillés selon des dimensions spécifiques avec les réservations indispensables pour les ouvertures et les systèmes techniques. Sur le site de construction, ils sont montés à sec sur une structure porteuse ou intégrée, ce qui facilite un assemblage rapide, généralement en quelques jours. Des initiatives expérimentales en France, telles que les habitations passives ou les écoles vertes, ont prouvé la viabilité technique et la pérennité de ce modèle. En outre, cette approche privilégie les circuits courts, la mise en valeur des résidus agricoles et l'essor d'une économie locale centrée sur la construction à base de biosourcé.

Mobirise
Mobirise

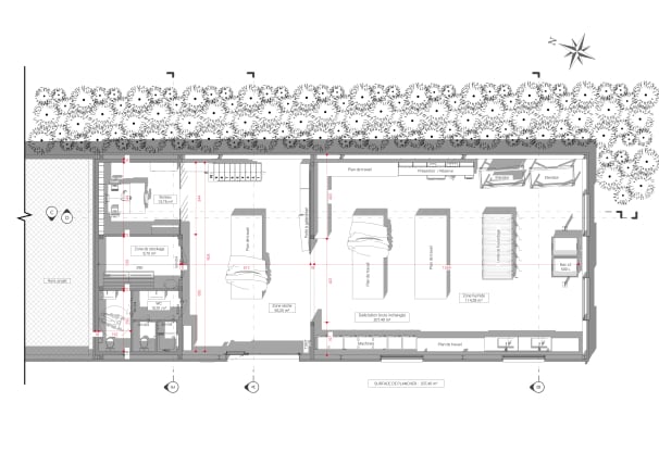
Transformation d'un entrepôt
en atelier de teinturerie

Dans le processus de transformation d'un ancien dépôt industriel en teinturerie manuelle, un projet test a été initié pour allier production textile et respect de l'environnement. On a opté pour l'usage exclusif de teintures naturelles (issues de plantes, d'écorces et d'extraits minéraux), diminuant ainsi significativement la nocivité des rejets. Pour appuyer cette approche, l'atelier a été doté d'un système de traitement d'eau en circuit semi-fermé, capable de réutiliser jusqu'à 80 % de l'eau employée. Le système comprend un réservoir de collecte des eaux usées, une étape de prétraitement par décantation et filtration mécanique, suivie d'une filtration à travers des filtres naturels (charbon actif, sable, sciure). Cette association permet d'éliminer la plupart des résidus colorants et particules.

Par la suite, l'eau est acheminée vers une phytoépuration qui utilise des plantes locales capables d'absorber les résidus organiques restants. Après cela, un traitement tertiaire par UV est effectué avant que l'eau ne soit réutilisée pour les rinçages et le nettoyage des équipements. Cette méthode assure une réduction de l'utilisation d'eau douce, tout en limitant l'évacuation de polluants dans le réseau. Le système a été élaboré pour s'incorporer sans difficulté dans l'infrastructure en place, sans nécessiter d'équipements industriels lourds. Le projet se positionne donc dans une optique d'économie circulaire et de conservation de l'eau, tout en mettant en valeur des compétences artisanales dans un contexte moderne.

Earthships

Mobirise

Dans une période marquée par la transition écologique et la recherche de résilience dans l'habitat, l'idée d'Earthship devrait être analysée comme un modèle inspirant pour l'élaboration de projets durables, indépendants et ayant un faible impact sur l'environnement. Fondé sur des concepts de construction bioclimatique et d'utilisation de matériaux recyclés (comme les pneus remplis de terre, les bouteilles en verre, les canettes en aluminium, etc.), ce modèle d'habitation offre une solution technique et pragmatique aux problématiques contemporaines de l'économie d'énergie, de minimisation des déchets et d'indépendance énergétique des bâtiments.

L'Earthship combine l'inertie thermique, l'orientation bioclimatique, la ventilation naturelle et des systèmes autonomes intégrés, comme la collecte et le traitement de l'eau de pluie, la génération d'énergie photovoltaïque et la gestion des eaux usées. Par ailleurs, l'incorporation d'espaces de culture en serre intérieure favorise une production alimentaire auto-suffisante partielle, renforçant ainsi l'indépendance globale de l'habitat.

Des témoignages pratiques, en particulier dans les zones sèches du Nouveau-Mexique, démontrent que ces constructions peuvent assurer un confort thermique idéal tout au long de l'année, avec une nécessité d'entretien minimale, tout en étant autonomes par rapport aux réseaux traditionnels d'eau, d'électricité et d'assainissement.

Bien que ce modèle ne soit pas nécessairement applicable dans tous les contextes réglementaires ou climatiques, il demeure néanmoins un point de départ de réflexion pertinent. Il atteste d'une démarche constructive basée sur l'économie de ressources, la pérennité des matériaux, la réversibilité des usages et l'indépendance énergétique — toutes des normes que nous devons implémenter de manière plus systématique dans nos méthodes de conception.

S'inspirer de l'Earthship ne signifie pas copier le modèle à la lettre, mais plutôt réévaluer nos pratiques de construction en visant une adaptation maximale à l'environnement.

Mobirise

LE TRAIT CREATIF

letraitcreatif.fr est en ligne pour sa consultation.
L’ensemble de son contenu relève de la propriété intellectuelle et appartient à son auteur.
Conditions d'utilisation | Politique de confidentialité | Mentions légales